湖南市平松北2丁目の事務所

13.2万円(0.32万円/坪)

管理 / 共益費 13,200円

滋賀県湖南市平松北2丁目

草津線「甲西」駅徒歩5分

草津線「石部」駅徒歩45分

賃料 / 坪単価
13.2万円 / 0.32万円
敷金(保証金)
0ヶ月(3ヶ月)
所在地
滋賀県湖南市平松北2丁目
交通

草津線甲西」駅 徒歩5分

草津線石部」駅 徒歩45分

管理 / 共益費
13,200円
礼金
0ヶ月
建物面積
40.83坪(135.00㎡)
築年月
1988年11月(築37年)

セールスポイント

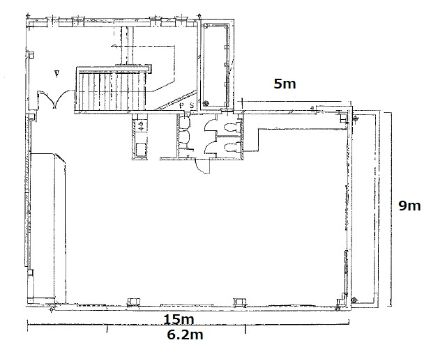
JR草津線・甲西駅より徒歩5分、2階1フロア貸事務所です(分割可)。県道4号線沿いにございます。ガラス面も大きく視認性良好です。広さは約40坪(135㎡)あり、トイレ、給湯室完備しております。事務所、各種スクールに適します。

ポイント

甲西駅 2階 事務所 ロードサイド 駅近

基本情報

保証金
3ヶ月
敷引 / 償却
3ヶ月 / -
建物面積
135.00㎡
所在階 / 階建て
2階 / 2階建
建物構造
鉄骨造
築年月
1988年11月(築37年)
種別
事務所
契約期間
3年
用途地域
商業
保証会社 / 料金
必加入 / -
駐車場
空有 4,400円 (税込)
現況
空家
入居可能時期
相談
その他条件
水道料金:3,000円(月額)
取引条件の
有効期限
2026年01月16日

設備条件

設備条件
  • スクール向け / 物販向け / プロパンガス / 公営水道 / 公共下水 / 電気有 / エステサロン向け / マッサージ・整体院向け

その他

賃貸区分
一般
更新料
0ヶ月
保険会社 / 料金
有  火災保険  / -
取引態様
仲介
物件番号
71855186
情報更新日
2026年01月05日
次回更新予定日
2026年01月16日
取扱会社
  • 株式会社レガリア
  • 滋賀県守山市吉身2丁目9-27-204 
  • TEL:077-514-3337
  • 滋賀県知事 (1) 第3908号
  • (公社)滋賀県宅地建物取引業協会
備考
※表示金額:全て税込

湖南市平松北2丁目の事務所

湖南市平松北2丁目の事務所

13.2万円

13,200円

40.83坪(135.00㎡)

お気軽にお問い合わせください

LINEからお問い合わせ 無料お問い合わせ

株式会社レガリア

077-514-3337

09:00~19:00

(休:土日祝)