近江八幡市多賀町の倉庫

27.5万円 (0.29万円/坪)

管理/共益費 -

滋賀県近江八幡市多賀町

東海道本線「近江八幡」駅徒歩27分

価格
27.5万円(0.29万円/坪) 管理/共益費 -
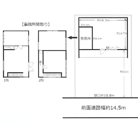
建物面積
93.36坪(308.63㎡)
所在地
滋賀県近江八幡市多賀町
築年
1972年10月(築53年)
駐車
-
交通

東海道本線近江八幡」駅 徒歩27分

近江八幡市多賀町の倉庫の基本情報

物件名
近江八幡市多賀町の倉庫
価格
27.5万円(0.29万円/坪)
管理/共益費
-
築年月
1972年10月(築53年)
所在地
滋賀県近江八幡市多賀町
交通

東海道本線近江八幡」駅 徒歩27分

近江八幡市多賀町の倉庫の詳細情報

設備条件
駐車場/月額
-/-
用途地域
第一種住居
取引態様
仲介

近江八幡市多賀町の倉庫で募集中の物件

  1. 1-2階

    93.36坪 (308.63㎡)

    27.5万円(0.29万円/坪)

よく見られている物件

  1. 守山市今浜町

    - (35.03㎡)

    7.15万円

  2. 近江八幡市西生来町

    - (118.40㎡)

    9.9万円

  3. 草津市上寺町

    - (94.92㎡)

    14.3万円

  4. 草津市草津4丁目

    - (360.86㎡)

    38万円

近江八幡市多賀町の倉庫

お気軽にお問い合わせください

LINEからお問い合わせ 無料お問い合わせ

株式会社レガリア

077-514-3337

09:00~19:00

(休:土日祝)