大津市西の庄の店舗事務所

23.91万円(0.72万円/坪)

管理 / 共益費 73,546円

滋賀県大津市西の庄

東海道本線「膳所」駅徒歩12分

京阪石山坂本線「錦」駅徒歩9分

賃料 / 坪単価
23.91万円 / 0.72万円
敷金(保証金)
234.01万円(0ヶ月)
所在地
滋賀県大津市西の庄
交通

東海道本線膳所」駅 徒歩12分

京阪石山坂本線」駅 徒歩9分

管理 / 共益費
73,546円
礼金
0ヶ月
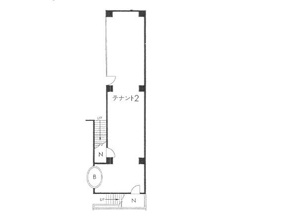
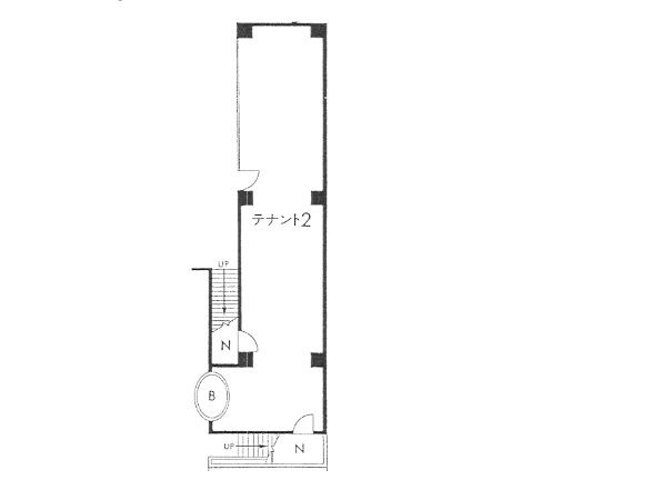
建物面積
33.42坪(110.51㎡)
築年月
1990年6月(築35年)

物件の特徴

  • エレベーター

セールスポイント

JR膳所駅より徒歩12分・京阪錦駅より徒歩9分。デザイナービルの1階の店舗・事務所、約33坪。

ポイント

膳所駅 錦駅 店舗 事務所

基本情報

保証金
0ヶ月
敷引 / 償却
- / -
建物面積
110.51㎡
所在階 / 階建て
1階 / 6階建
建物構造
鉄筋コンクリート
築年月
1990年6月(築35年)
種別
店舗事務所
契約期間
定期借家 3年
用途地域
近隣商業
保証会社 / 料金
必加入 / -
駐車場 / 月額
空有 / 12,100円 (税込) 立体駐車場
現況
空家
入居可能時期
即時
取引条件の
有効期限
2026年03月20日

設備条件

設備条件
  • スクール向け / クリニック向け / 美容室向け / 物販向け / 都市ガス / 公営水道 / 公共下水 / エレベーター / 電気有 / トイレ共同

その他

賃貸区分
定期借家権
保険会社 / 料金
有  / -
取引態様
仲介
物件番号
71856038
情報更新日
2026年03月09日
次回更新予定日
2026年03月20日
取扱会社
  • 株式会社レガリア
  • 滋賀県守山市吉身2丁目9-27-204 
  • TEL:077-514-3337
  • 滋賀県知事 (1) 第3908号
  • (公社)滋賀県宅地建物取引業協会
備考
スケルトン、再契約要相談
※表示金額:全て税込

よく見られている物件

  1. 大津市雄琴2丁目の店舗

    大津市雄琴2丁目

    - (99.57㎡)

    16.5万円

  2. 近江八幡市市井町の店舗一部

    近江八幡市市井町

    - (30.00㎡)

    7.7万円

  3. 草津市野路町の店舗一部

    草津市野路町

    - (29.23㎡)

    9.68万円

  4. 近江八幡市馬淵町の店舗一部

    近江八幡市馬淵町

    - (70.00㎡)

    11万円

大津市西の庄の店舗事務所

大津市西の庄の店舗事務所

23.91万円

73,546円

33.42坪(110.51㎡)

お気軽にお問い合わせください

LINEからお問い合わせ 無料お問い合わせ

株式会社レガリア

077-514-3337

09:00~19:00

(休:土日祝)