守山市守山4丁目の事務所

16.5万円(0.76万円/坪)

管理 / 共益費 6,600円

滋賀県守山市守山4丁目

東海道本線「守山」駅徒歩18分

賃料 / 坪単価
16.5万円 / 0.76万円
敷金(保証金)
1ヶ月(0ヶ月)
所在地
滋賀県守山市守山4丁目
交通

東海道本線守山」駅 徒歩18分

管理 / 共益費
6,600円
礼金
2ヶ月
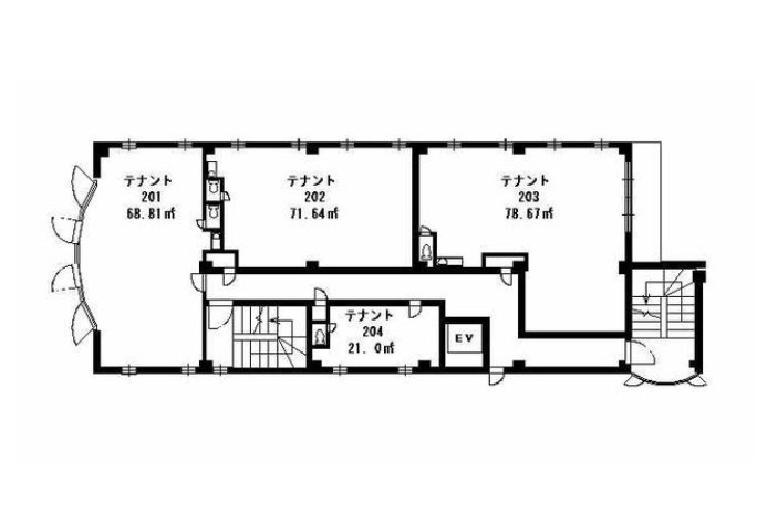
建物面積
21.67坪(71.64㎡)
築年月
1996年7月(築29年)

セールスポイント

JR守山駅より徒歩18分 2階 約21坪 事務所等に適しています。

ポイント

JR守山駅 2階 事務所 エステ マッサージ

基本情報

保証金
0ヶ月
敷引 / 償却
- / -
建物面積
21.67坪(71.64㎡)
所在階 / 階建て
2階 / 4階建
建物構造
鉄骨造
築年月
1996年7月(築29年)
種別
事務所
契約期間
5年
用途地域
近隣商業
保証会社 / 料金
必加入 / -
駐車場 / 月額
空有(2台) / 6,050円 (税込) 別途来客者向け駐車場有(無料)
現況
空家
入居可能時期
即時
取引条件の
有効期限
2026年05月27日

設備条件

設備条件
  • 美容室向け / プロパンガス / 公営水道 / 公共下水 / エステサロン向け / 歯科向け / 病院・クリニック向け / マッサージ・整体院向け

その他

賃貸区分
一般
更新料
1ヶ月(新賃料)
保険会社 / 料金
有  / -
取引態様
仲介
物件番号
86030327
情報更新日
2026年05月13日
次回更新予定日
2026年05月27日
取扱会社
  • 株式会社レガリア
  • 滋賀県守山市吉身2丁目9-27-204 
  • TEL:077-514-3337
  • 滋賀県知事 (1) 第3908号
  • (公社)滋賀県宅地建物取引業協会
備考
※表示価格:全て税込

よく見られている物件

  1. 草津市野村4丁目の事務所

    草津市野村4丁目

    - (42.54㎡)

    8.98万円

  2. 草津市草津1丁目の事務所

    草津市草津1丁目

    - (80.00㎡)

    25.3万円

  3. 大津市浜町の事務所

    大津市浜町

    - (24.03㎡)

    5.5万円

  4. 栗東市高野の事務所

    栗東市高野

    - (55.00㎡)

    4.29万円

守山市守山4丁目の事務所

守山市守山4丁目の事務所

16.5万円

6,600円

21.67坪(71.64㎡)

お気軽にお問い合わせください

LINEからお問い合わせ 無料お問い合わせ

株式会社レガリア

077-514-3337

09:00~19:00

(休:土日祝)